Kameralne osiedle w Oławie niedaleko Wrocławia. Nowość - W sprzedaży III Etap, a w nim 5-kondygnacyjny budynek z windą, budynek F mieści 46 nowych mieszkań od 32 do 48m2 oraz 9 garaży indywidualnych. Mieszkania posiadają balkony, tarasy lub ogródki. Odbierz klucze już w 2026 r.

  • Ceny od 9400 zł/m2
  • Metraże od 32 do 48 m2
  • II Etap zakończony , odbierz klucze już teraz!
    Budynek C oraz D - ostatnie gotowe mieszkania

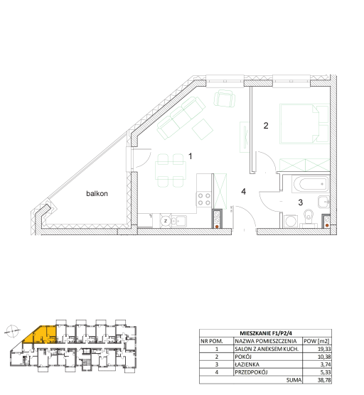
Oława Jodłowa F1/P2/4

Lokalizacja przedsięwzięcia deweloperskiego

Miejscowość: OŁAWA
Ulica: JODŁOWA
Numer działki: dz. nr 1/326 AM-56
Numer porządkowy: 46
Etap inwestycji: Etap III - F
Informacje ogólne o inwestycji:
Typ inwestycji: zabudowa wielorodzinna
Rodzaj inwestycji: budynek 5-kondygnacyjny
Ilość mieszkań + garaży: 46 + 9
Powierzchnie: od 32 m2 do 48 m2
Prospekt informacyjny: dostępny tutaj
Informacje o tym lokalu:
Rodzaj lokalu: mieszkanie
Kondygnacja: Piętro - P2
Nr lokalu: F1/P2/4   -
ilość pomieszczeń: 4
Układ (Pokoi+Aneks/Kuchnia): 2P+A
Powierzchnia: 38.78 m2
Przynależne: balkon
Oferta cenowa:
1 2 3 4
Rodzaj lokalu: mieszkanie komórka m.postojowe garaż
Cena (zł): 9.400,00/m2 3.000,00/szt. 15.000,00/szt. X
Wartość (zł): 365.096,00 3.000,00 15.000,00 X
Cena całkowita z komórką
Wartość 1 + 2
368.096,00
Cena całkowita z m.postojowym lub garażem:
Wartość 1 + 2 + 3 / 1 + 2 + 4
Do wyboru przez nabywcę

Dowiedz się więcej 
Wypełnij i wyślij formularz - prześlemy Ci ofertę osiedla

Doradztwo
kredytowe